Лаки
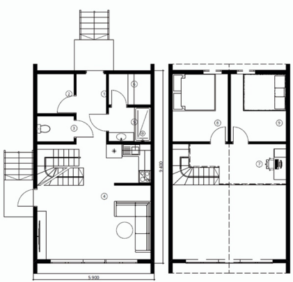
Общая площадь 87,86 кв. (строительная площадь 62,46 кв.), теплый контур 76,93 кв., терраса 11,03 кв.
Площадь
76 м²
Цена за м²
64 605 ₽/м²
Общая площадь 87,86 кв. (строительная площадь 62,46 кв.), теплый контур 76,93 кв., терраса 11,03 кв.